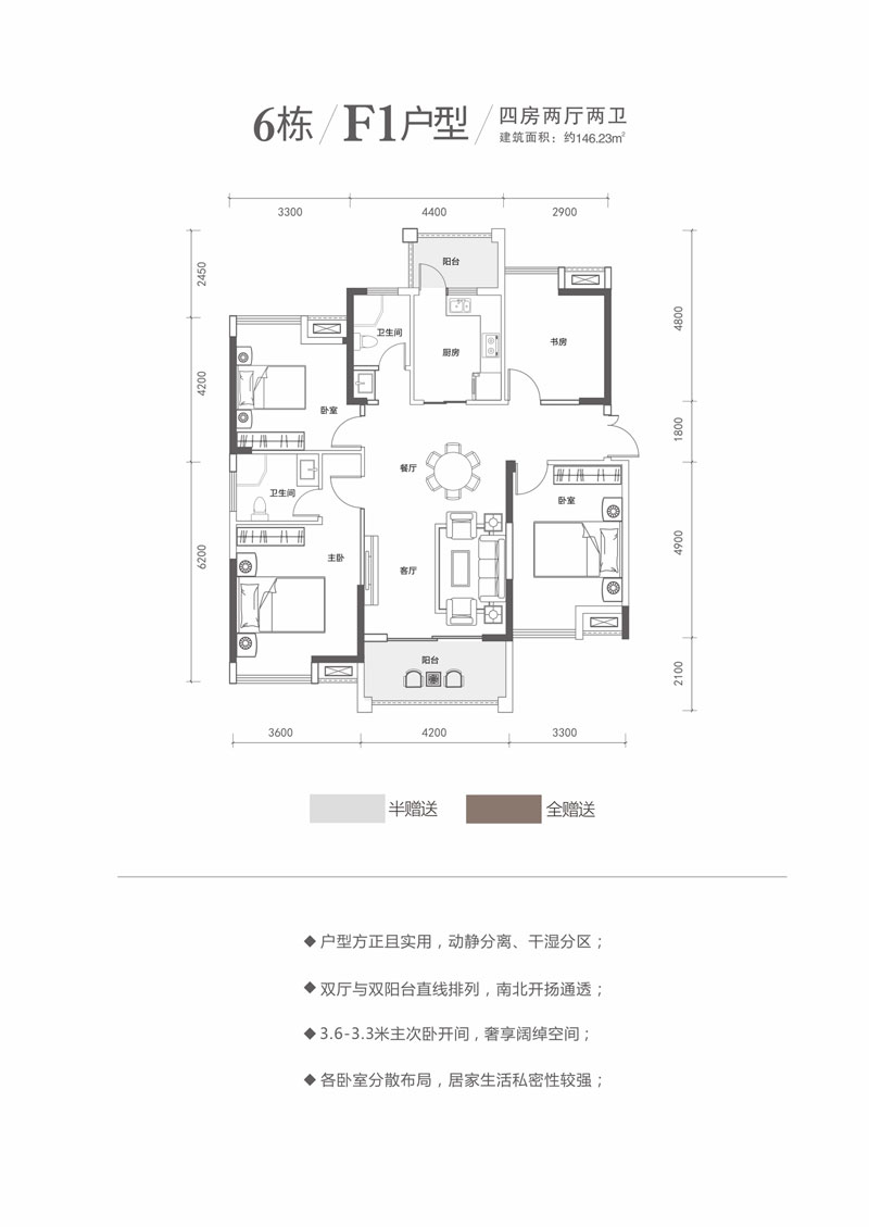
安乡兰乔公馆6栋F1_户型图鉴赏-常德房源网

安乡兰乔公馆

新盘

  • 小户型投资
  • 低密居所
  • 宜居生态
  • 商业综合体